Россия, Санкт-Петербург, поселок Шушары, Старорусский проспект дом 6
+7 (911) 927-65-88
заказать звонок
Согласование перепланировки
квартиры
цена 90 000 руб., срок производства работ 4 мес.
Заказать проект перепланировки
или просто позвоните нам:
Согласовать перевод в нежилой фонд
или просто позвоните нам:
Перевод квартиры в нежилой фонд
цена от 700 000р. - 800 000р., срок 8 месяцев
Согласование тамбурных перегородок
Стоимость работ с материалами под ключ 50 000 руб. Сроки до 2 мес.

Узаконить тамбурную перегородку
или просто позвоните нам:
Почему стоит выбрать
именно нашу организацию
Опыт
Более 20 лет плодотворной работы
Под ключ
Реализовано более
1620 проектов «под ключ»
Портфолио
Согласовано более
2750 проектов
Допуск сро
Допуск СРО
на проектные работы
Цена
Доступная стоимость и
понятное ценообразование
Сроки
Подготовим проект
от 4 дней
Договор
Работаем строго по
договору
Согласовываем
Сами проектируем
и согласовываем
Примеры проектов
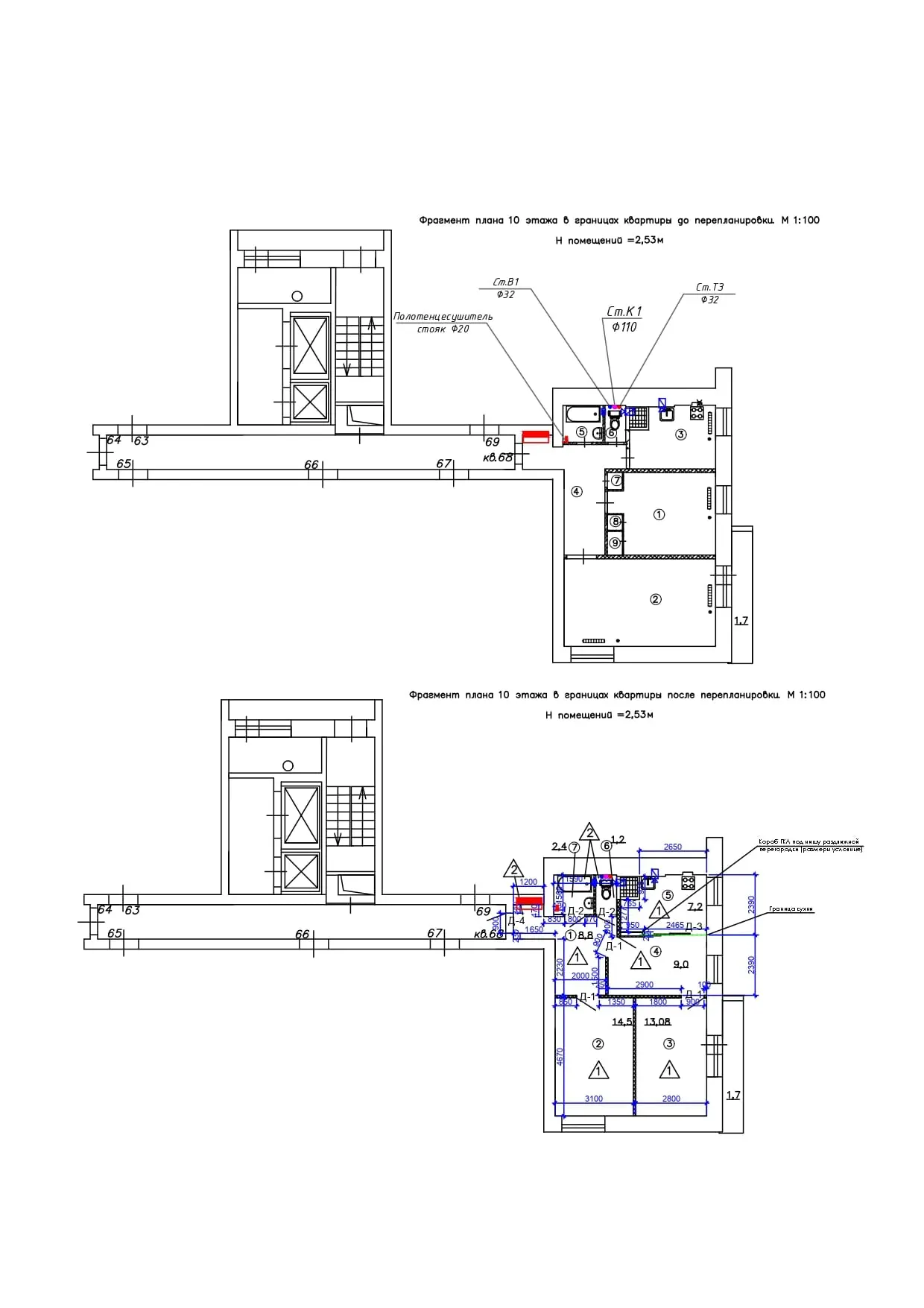
Проект перепланировки
ул.Ленина, д.1
Описание сути перепланировки
Стоимость согласования перепланировки "под ключ" 75 000 рублей
Проект в PDF
Получить консультацию
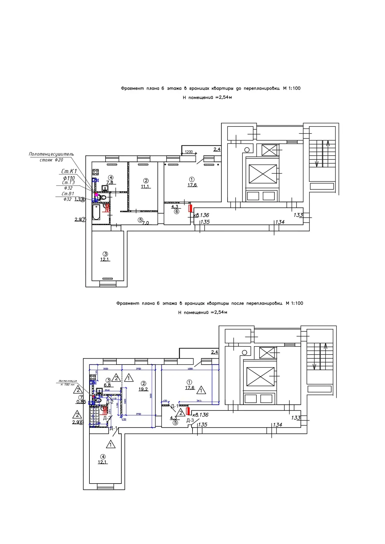
Проект перепланировки
ул.Ленина, д.1
Описание сути перепланировки
Стоимость согласования перепланировки "под ключ" 96 000 рублей
Проект в PDF
Получить консультацию
Проект перепланировки
ул.Ленина, д.1, корп. 4
Описание сути перепланировки
Стоимость согласования перепланировки "под ключ" 170 000 рублей
Проект в PDF
Получить консультацию
Документы компании
Наши
гарантии

Компания более чем за 20 лет плодотворной работы накопила колоссальный опыт в перепланировке всех типов помещений. Все работы осуществляются в строгом соответствии с договором.

Имеем допуски СРО
Если беремся за работу, гарантируем 100% результат
Оставить заявку на перепланировку
Согласованные перепланировки
Проконсультируем бесплатно
Перезвоним Вам и все подробно расскажем
Бесплатная консультация
или просто позвоните нам:
Наши
Контакты
заказать звонок
Россия, Санкт-Петербург, поселок Шушары, Старорусский проспект дом 6
Заказать звонок
Оставьте свой номер телефона мы перезвоним и ответим на все вопросы